Atelic Atelier
未完成的工作室
  • 你好NIHAO
  • 工作WORK
  • 关于ABOUT
  • 日志JOURNAL
  • 咨询CONTACT
Menu
+86 156 1881 1211aa@designinfi.com
  • Twitter
  • Instagram
  • 500px
©2022 by Atelic Atelier.

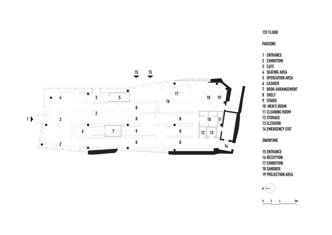
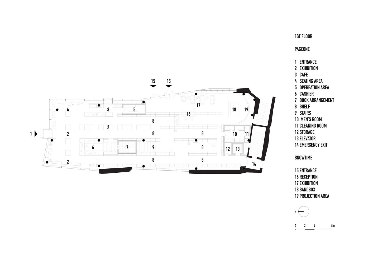
PAGEONE STORE

Loading